Nový ROSI 3KK - Celoroční dřevěný - plochá střecha
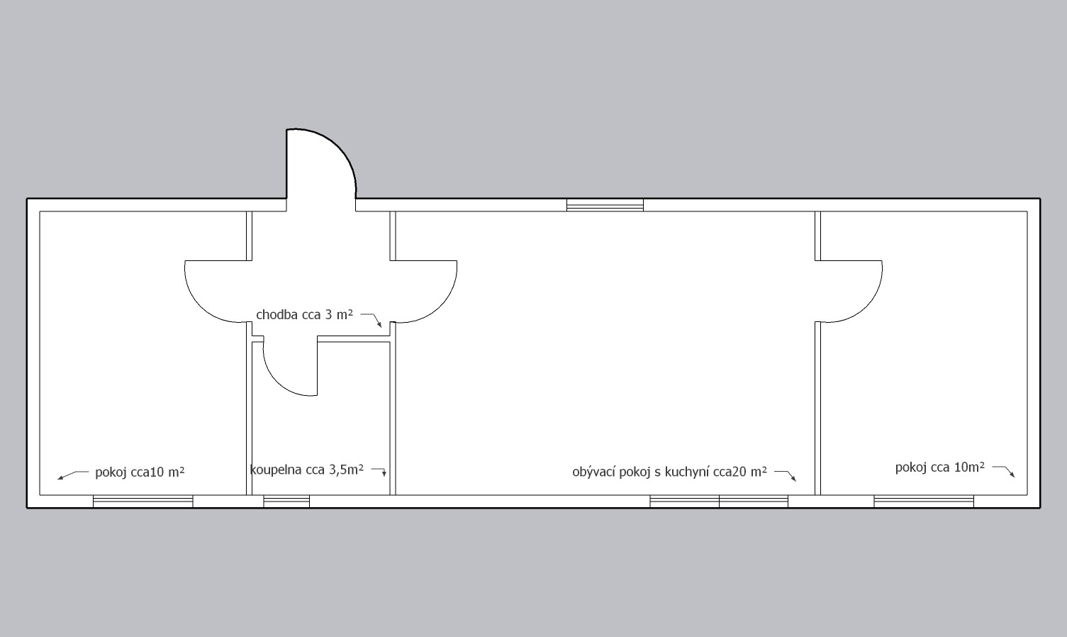
| Rozměry: | 13,2 x 4m (cca 53m2) |
| Rozvržení: | 2 ložnice, obývací pokoj s kuchyňským koutem, koupelna, WC |
| Výbava: | Nový, plochá střecha, 2,5m světlá výška stropu v celém mobilheimu, dřevěný obklad, vnitřní stěny sádrokarton v kombinaci s dřevěným obkladem, strop dřevěný obklad, podlaha zátěžové lino, kuchyně, (dřez, digestoř, varná deska s troubou), koupelna (WC, umyvadlo, sprchový box, bojler 80l) |
| Dostupnost: | na objednání |
| Cena: | 1 989 000 Kč vč. DPH |
Pokud si nevyberete mobilheim z naší nabídky, tak Vám rádi vyrobíme mobilheim podle Vašich představ.
Mobilheim Hluboká kontakty:
Mobilní domy Jižní Čechy s.r.o.
Tel: +420 606 757 065,
Email: info@mobilheim-hluboka.cz
Prodejní centrum Mobilheim Hluboká:
Hluboká nad Vltavout - Zámostí u vlakového nádraží
GPS: 49.0501917°N, 14.4654153°E
Mobilheim Hluboká - Nový mobilheim celoroční výroba
Mobilhem Hluboká - Nový mobilheim celoroční přeprava




