Nový ROSI 3KK - Celoroční s fasádním lepidlem a dřevem - sedlová střecha
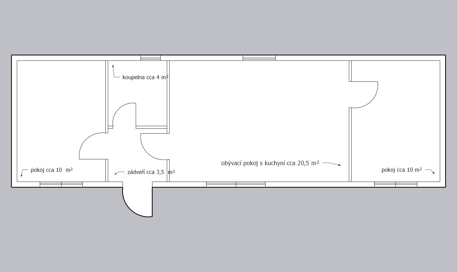
| Rozměry: | 13,39 x 4,19 (56m2) |
| Rozvržení: | 2 ložnice, obývací pokoj s kuchyňským koutem, koupelna, WC |
| Výbava: | Nový mobilheim, fasádní lepidlo s dřevěným obkladem, vnitřní stěny sádrokarton a dřevěný obklad, strop dřevěný obklad, kuchyně L, (dřez, digestoř, varná deska s troubou), koupelna (WC, umyvadlo, sprchový box, bojler 80l), síla vnějších stěn cca 24 cm, podlahy cca 15 cm, střechy cca 24 cm |
| Dostupnost: | Rezervováno |
| Cena: | Akce 1 819 000 Kč vč. DPH |
| Ušetříte: | 1 934 000 Kč vč. DPH |
Pokud si nevyberete mobilheim z naší nabídky, tak Vám rádi vyrobíme mobilheim podle Vašich představ.
Mobilheim Hluboká kontakty:
Mobilní domy Jižní Čechy s.r.o.
Tel: +420 606 757 065,
Email: info@mobilheim-hluboka.cz
Prodejní centrum Mobilheim Hluboká:
Hluboká nad Vltavout - Zámostí u vlakového nádraží
GPS: 49.0501917°N, 14.4654153°E
Mobilheim Hluboká - Nový mobilheim celoroční výroba
Mobilhem Hluboká - Nový mobilheim celoroční přeprava





















